top of page
Wohnung 2
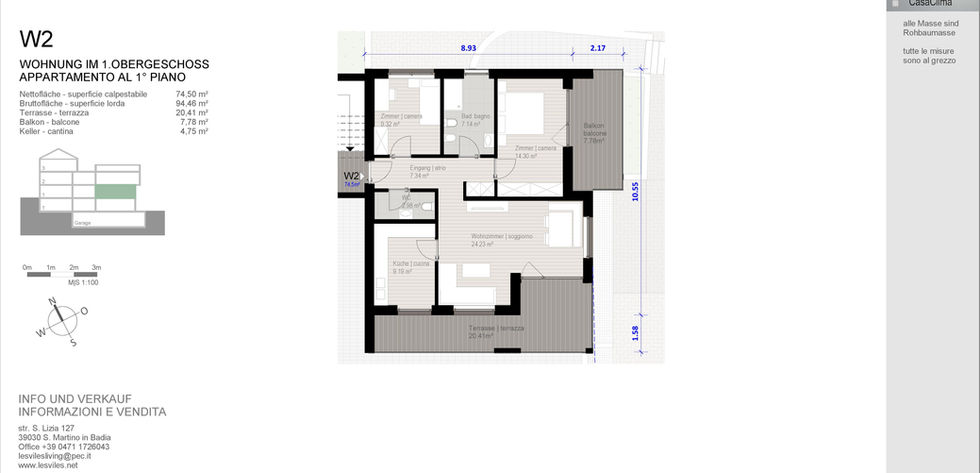
Zum Verkauf steht eine lichtdurchflutete Wohnung im ersten Stock, die über eine Küche, ein großzügiges Wohnzimmer, zwei Schlafzimmer, ein Bad und eine Dusche verfügt. Zur Immobilie gehören zudem ein Keller, eine Garage, ein gemeinschaftlicher Fahrradraum und Freiflächen im Erdgeschoss. Diese Wohnmöglichkeit vereint Platz und Komfort und eignet sich hervorragend für Familien oder Paare. Bei Interesse freuen wir uns auf Ihre Nachricht.

Les Viles Living GmbH
Öffnungszeiten
Strada S. Lizia 127
39030 San Martino in Badia, IT
+39 334 1982607
Mon - Fri
8:00 am – 12:00 pm
14:00pm – 18:00 pm
Kontaktieren Sie uns
für weitere Informationen
bottom of page



